Centralt kontor med flexibla ytor och smidig tillgänglighet
Välkommen till en ljus och välplanerad kontorslokal på våning 6 med ett centralt och lättillgängligt läge intill Svingelns hållplats i Göteborg. Lokalen omfattar 153 kvm och erbjuder en trivsam arbetsmiljö med goda möjligheter att anpassa ytorna efter verksamhetens behov.
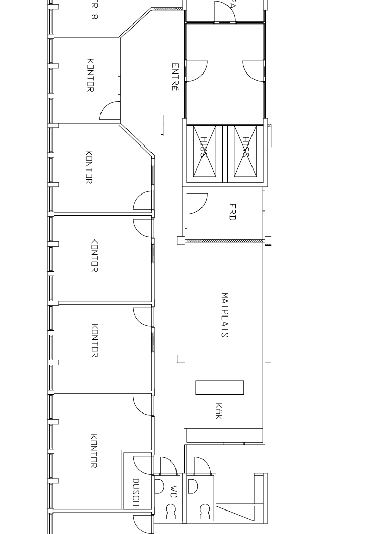
Planlösningen består av fyra kontorsrum, ett mötesrum, pentry med matplats, wc med dusch samt förråd. De generösa fönsterpartierna bidrar till en ljus och behaglig atmosfär som gör det enkelt att skapa en inspirerande arbetsplats.
För dig som pendlar med bil finns tillgång till garage i källaren, och för den som föredrar kollektivtrafik ligger spårvagns- och busshållplatsen precis utanför entrén. Härifrån når du enkelt Göteborgs innerstad och stadens utbud av restauranger, butiker och service.
En funktionell kontorslokal med det lilla extra – perfekt för företag som värdesätter både tillgänglighet och en trivsam arbetsmiljö.
Har ni frågor eller vill ni boka tid för en visning?
Välkommen att kontakta oss på 031-3504900 eller hej@loqalo.se!
Du har nu 20 lokaler sparade, vilket är maxantalet.
Visa lokalerVisa hyra - helt kostnadsfritt
Som användare kan du favoritmarkera och spara lokaler i listor och få en tydlig överblick. Du får hyra för varje lokal och personlig hjälp och rådgivning.
Du kan läsa mer här
Spara en lokal
Skapa en lista och fråga efter alla hyror samtidigt eller bli användare så sparar du listan och ser hyrorna online.
Du har nu 20 lokaler sparade, vilket är maxantalet.

