Kontorslokal med takterrass och skyltläge – Anpassningsbart kontor i Gårda!
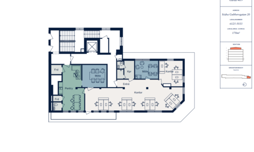
Här finns nu en trevlig kontorslokal om 170 kvm i Gårda. Här sitter ni högst upp i huset och har tillgång till en egen härlig takterrass. Här finns stora möjligheter att anpassa både planlösning och ytskikt i samråd med nästkommande hyresgäst. Utmärkt skyltläge mot E6:an. Närhet till kommunikationer och service. Parkeringsmöjligheter i anslutning till fastigheten.
Har ni frågor eller vill ni boka tid för en visning?
Välkommen att kontakta oss på 031-3504900 eller hej@loqalo.se!
Du har nu 20 lokaler sparade, vilket är maxantalet.
Visa lokalerVisa hyra - helt kostnadsfritt
Som användare kan du favoritmarkera och spara lokaler i listor och få en tydlig överblick. Du får hyra för varje lokal och personlig hjälp och rådgivning.
Du kan läsa mer här
Spara en lokal
Skapa en lista och fråga efter alla hyror samtidigt eller bli användare så sparar du listan och ser hyrorna online.
Du har nu 20 lokaler sparade, vilket är maxantalet.

