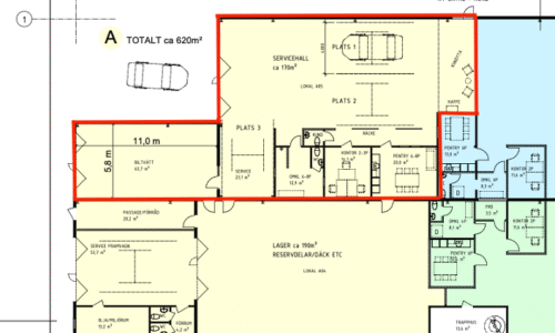
Lager/industrilokal med stora portar och anpassningsmöjligheter!
Lager- och industrilokal med en takhöjd på 5-7 meter och stora portar på 5×6 meter. Lokalen har en öppen planlösning med möjligheter att anpassas efter hyresgästens behov.
Viared Företagspark, som har smidig access från Riksväg 40, är hem för runt 400 företag, inklusive Ellos, Netonnet, Biltema och Mio. Borås stad fortsätter satsa på området, bland annat genom att förbereda 80 hektar ny industrimark.
Området erbjuder bra service med ett flertal restauranger, och det finns goda kollektivtrafikförbindelser, där bussar från Borås når Viared på cirka 15 minuter.
Har ni frågor eller boka tid för en visning?
Välkomna att kontakta oss på 031-350 49 00 eller hej@loqalo.se
Du har nu 20 lokaler sparade, vilket är maxantalet.
Visa lokalerVisa hyra - helt kostnadsfritt
Som användare kan du favoritmarkera och spara lokaler i listor och få en tydlig överblick. Du får hyra för varje lokal och personlig hjälp och rådgivning.
Du kan läsa mer här
Spara en lokal
Skapa en lista och fråga efter alla hyror samtidigt eller bli användare så sparar du listan och ser hyrorna online.
Du har nu 20 lokaler sparade, vilket är maxantalet.

