Ledig kontorslokal med direkt access till innergård
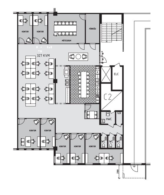
Nu erbjuds ett hörnkontor på 327 m², med både cellkontor och öppen planlösning samt konferens- och mötesrum. Lokalen har ett kök, WC och en vacker utsikt mot Änggårdsbergens lummiga grönska. Den flexibla planlösningen gör att lokalen kan anpassas efter er verksamhets behov och önskemål.
Pedagogen Park erbjuder allt för en smidig vardag, med bland annat blomsterbutik, vårdcentral, hunddagis, restauranger för lunch och AW, Nordic Wellness och Flexmassage. I området finns gott om parkeringsmöjligheter samt en busshållplats precis intill.
Har ni frågor eller vill boka tid för visning?
Välkomna att kontakta oss på 031-350 49 00 eller hej@loqalo.se
Du har nu 20 lokaler sparade, vilket är maxantalet.
Visa lokalerVisa hyra - helt kostnadsfritt
Som användare kan du favoritmarkera och spara lokaler i listor och få en tydlig överblick. Du får hyra för varje lokal och personlig hjälp och rådgivning.
Du kan läsa mer här
Spara en lokal
Skapa en lista och fråga efter alla hyror samtidigt eller bli användare så sparar du listan och ser hyrorna online.
Du har nu 20 lokaler sparade, vilket är maxantalet.

