Ledig kontorslokal med direkt access till innergård

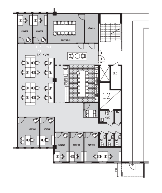
Nu erbjuds ett hörnkontor på 327 m², med både cellkontor och öppen planlösning samt konferens- och mötesrum. Lokalen har ett kök, WC och en vacker utsikt mot Änggårdsbergens lummiga grönska. Den flexibla planlösningen gör att lokalen kan anpassas efter er verksamhets behov och önskemål.

Pedagogen Park erbjuder allt för en smidig vardag, med bland annat blomsterbutik, vårdcentral, hunddagis, restauranger för lunch och AW, Nordic Wellness och Flexmassage. I området finns gott om parkeringsmöjligheter samt en busshållplats precis intill.

Har ni frågor eller vill boka tid för visning?
Välkomna att kontakta oss på 031-350 49 00 eller hej@loqalo.se

Storlek
237 m²
Typ av lokal
Kontor
Adress
Prästgårdsgatan 30 , Mölndal
Våningsplan
Entréplan
Område
Fässberg, Mölndal
Se hyresnivåer

Du har nu 20 lokaler sparade, vilket är maxantalet.

Visa lokaler

Visa hyra - helt kostnadsfritt

Som användare kan du favoritmarkera och spara lokaler i listor och få en tydlig överblick. Du får hyra för varje lokal och personlig hjälp och rådgivning.

Du kan läsa mer här

Fyll i för att se hyror och få bevakning på nya matchande lokaler

Ett fel uppstod

Du verkar redan vara medlem, Logga in här. Eller kontakta oss via hej@loqalo.se för att få dina inloggningsuppgifter.

Ett fel uppstod

Försök igen eller kontakta oss via hej@loqalo.se för att få hjälp.

Tack, vi återkommer snart!

Spara en lokal

Skapa en lista och fråga efter alla hyror samtidigt eller bli användare så sparar du listan och ser hyrorna online.

Du har nu 20 lokaler sparade, vilket är maxantalet.

Lokalen har lagts till i din lista! Kika under hjärtat upp till höger.

Visa listan Fortsätt

Prästgårdsgatan 30

Till lokal

Fässberg, Mölndal

Typ av lokal
Kontor
Storlek
237 m²
Våningsplan
Entréplan