Unik kontorslokal med fantastisk utsikt i nordstan
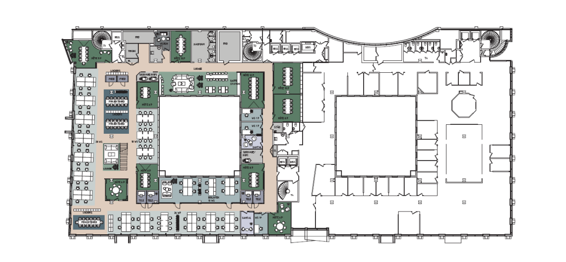
Upplev en arbetsplats som kombinerar modern design med oslagbar utsikt över Operan och älven. Denna unika lokal på plan 6 och 7 erbjuder 2 284 m² med rymliga kontorsrum, flera konferensutrymmen och ett inbjudande pentry. Efter en omfattande renovering 2016, har fastigheten blivit en modern pärla med ny glasfasad och toppmoderna inre utrymmen.
Lokalen ligger i hörnet av Nordstan, vilket ger direkt tillgång till stadens bästa shopping och service. Nordstans parkeringshus ligger precis intill, och kommunikationerna är utmärkta med bussar, spårvagnar och cykelleder vid dörren, samt Centralstationen en kort promenad bort.
Ge ditt företag den plats det förtjänar i Göteborgs mest eftertraktade läge!
Har ni frågor eller vill ni boka tid för en visning?
Välkommen att kontakta oss på 031-3504900 eller hej@loqalo.se!
Du har nu 20 lokaler sparade, vilket är maxantalet.
Visa lokalerVisa hyra - helt kostnadsfritt
Som användare kan du favoritmarkera och spara lokaler i listor och få en tydlig överblick. Du får hyra för varje lokal och personlig hjälp och rådgivning.
Du kan läsa mer här
Spara en lokal
Skapa en lista och fråga efter alla hyror samtidigt eller bli användare så sparar du listan och ser hyrorna online.
Du har nu 20 lokaler sparade, vilket är maxantalet.

