Unik kontorslokal vid Järntorget!
Välkommen till Norra Allégatan 5!
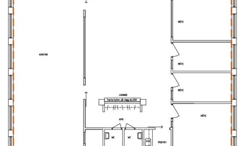
Här kan vi nu erbjuda en trevlig kontorslokal om 196 kvm på ett utmärkt läge vid Järntorget. Planlösningen består av ett öppet kontorslandskap, mötesrum/kontorsrum i olika storlekar, samt pentry, lounge och två stycken toaletter. Här sitter ni med direkt närhet till service och kommunikationer.
Har ni frågor eller vill ni boka tid för en visning? Välkommen att kontakta oss på 031-3504900 eller hej@loqalo.se!
Du har nu 20 lokaler sparade, vilket är maxantalet.
Visa lokalerVisa hyra - helt kostnadsfritt
Som användare kan du favoritmarkera och spara lokaler i listor och få en tydlig överblick. Du får hyra för varje lokal och personlig hjälp och rådgivning.
Du kan läsa mer här
Spara en lokal
Skapa en lista och fråga efter alla hyror samtidigt eller bli användare så sparar du listan och ser hyrorna online.
Du har nu 20 lokaler sparade, vilket är maxantalet.

