Anpassningsbar kontorsyta i nybyggt, modernt hus i Pedagogen Park!
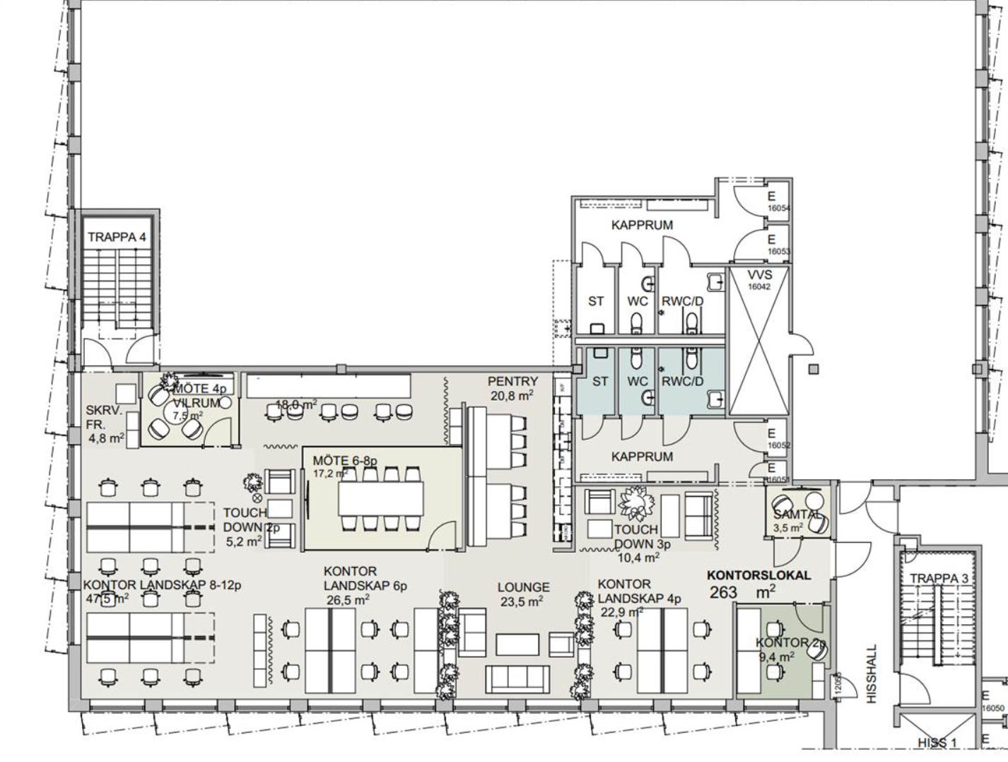
Här finns möjlighet att skapa en kontorsmiljö helt utformad efter er verksamhets behov! Parkhus 4, färdigställt våren 2024, erbjuder flexibla och ljusa lokaler med generös takhöjd, stora fönster och moderna materialval. Tillsammans med arkitekt och fastighetsägare kan ni anpassa ytan för konferensrum, tysta rum och rumsindelningar som passar just er – perfekt för verksamhetsspecifika lösningar.
Vid huvudentrén möts ni av en inbjudande mötesyta med lobbykänsla, sköna soffor, grönska och avslappnande musik, en utmärkt plats för kortare möten eller en kaffe. I området finns även en aktivitetsterrass med padelbana, shuffle och pingis på plan 2, och en takterrass på våning 7 där ni kan njuta av utsikten med lunch från någon av de två restaurangerna i huset.
Pedagogen Park erbjuder dessutom en mängd bekvämligheter som förenklar vardagen – mataffär, restauranger, caféer, vårdcentral och ett kommande Nordic Wellness-gym är bara några exempel. Området omges av grönområden för promenader och löpning, och här finns gott om parkeringsmöjligheter samt cykelgarage med omklädningsrum. Med närliggande busshållplats och bilpool är ni snabbt inne i Göteborg, och Styr & Ställ gör det enkelt att ta sig runt i området.
Har ni frågor eller vill ni boka tid för en visning?
Välkommen att kontakta oss på 031-3504900 eller hej@loqalo.se!
Du har nu 20 lokaler sparade, vilket är maxantalet.
Visa lokalerVisa hyra - helt kostnadsfritt
Som användare kan du favoritmarkera och spara lokaler i listor och få en tydlig överblick. Du får hyra för varje lokal och personlig hjälp och rådgivning.
Du kan läsa mer här
Spara en lokal
Skapa en lista och fråga efter alla hyror samtidigt eller bli användare så sparar du listan och ser hyrorna online.
Du har nu 20 lokaler sparade, vilket är maxantalet.

